Skip to main content Skip to page footer

Panoramafenster, großer Balkon, top Lage im Musikerviertel in Döse

Dieses sind die Attribute Ihrer zukünftigen, gut geschnittenen 2 Zimmer Eigentumswohnung im Erdgeschoss eines ruhigen 8 Familienhauses aus dem Baujahr 1975. 

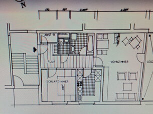
Vom Flur aus erreichen Sie alle Räume, besonders hervorzuheben ist das lichtdurchflutete Wohnzimmer mit seiner Fensterfront über die gesamte Breite des Raums und Zugang zu dem großen, sonnigen Balkon. Hier können Sie viele, lebendige Sonnenstunden genießen. Ein weiterer Pluspunkt dieser Wohnung ist das, von der Toilette, getrennte Badezimmer mit Badewanne. Die große helle Küche bietet ausreichend Platz für Leib und Seele. Im gemütlichen Schlafzimmer wurde bereits neuer Boden verlegt, ein kleiner Abstellraum im Flur rundet das Gesamte Paket ab. 

Die Panoramafenster und Terrassentür im Wohnzimmer wurden vor einigen Jahren bereits erneuert und sind mit Rollläden versehen. Ein eigener Kellerraum, so wie ein Außenstellplatz gehören ebenfalls zur Wohnung. Die Waschmaschine befindet sich im, zur Allgemeinheit zugehörigen Waschkeller, mit eigener Wasseruhr.

Mit etwas Modernisierung schaffen Sie sich hier ein tolles neues Zuhause oder Zweitwohnsitz.

 

Energieinformationen:
• Art: Energiebedarfsausweis
• Baujahr: 1975
• Wesentlicher Energieträger Erdgas H, Wärmetauscher Bj 2020
• Energieeffizienzklasse: C
• Endenergieverbrauch 100 kWh/(m²*a)
Ausgestellt am 08.01.2025, gültig bis 07.01.2035

  • Wohnfläche 72 m²
  • Zimmer 2
  • Badezimmer 1
  • Etage EG
  • Verfügbar ab April 2026
  • Baujahr 1975
  • Online-Besichtigung Nicht möglich
  • Hausgeld 399 €
  • Provision Mit Provision
  • Stellplatz
  • Kellerraum
  • Haustiere erlaubt

 

 

Optimal, in Stadtnähe und fußläufig zu Einkaufsmöglichkeiten, Ärzten, Bushaltestelle, Schulen uvm, liegt das, bei allen Generationen beliebte, Musikerviertel Cuxhavens. Von hier aus gelangen Sie ebenfalls innerhalb weniger Minuten zur Grimmershörnbucht oder auch dem Döser Sandstrand. Die Entfernung zur A 27 beträgt auch nur wenige Minuten, so dass Sie zentraler nicht wohnen können.

Kaufpreis: 159.900 €

Provision: Der Maklervertrag kommt durch eine schriftliche Vereinbarung mit mir, oder durch die Inanspruchnahme meiner Maklertätigkeit auf der Basis des Objekt-Exposés zustande. Die Käufercourtage in Höhe von 1,9 % in Höhe des Kaufpreises, einschließlich der zurzeit geltenden gesetzlichen Mehrwertsteuer ist bei notariellem Vertragsabschluss verdient und fällig, diese wird in den Kaufvertrag mit aufgenommen. Bei gesetzlichen Steuersatzänderungen unterliegt sie einer entsprechenden Anpassung. Ich als Makler erhalte durch Abschluss des Notarvertrages einen unmittelbaren Zahlungsanspruch gegenüber dem Käufer (Vertrag zugunsten Dritter, § 328 BGB). Alle Angaben in dieser Offerte sind ohne Gewähr und basieren ausschließlich auf Daten und Informationen, die mir vom Auftraggeber zur Verfügung gestellt wurden. Ich übernehme keine Gewähr für die Vollständigkeit, Richtigkeit und Aktualität dieser Angaben.